帝賦天璽

空間設計:住宅

地點:台南

坪數:92坪

格局:4房2廳5衛

主要建材:超耐磨木地板、灰玻、木作貼皮、烤漆、木百葉

裝潢風格:簡約現代風格

文章標題

透天室內設計規劃|步入更衣室,猶如置身奢華精品專櫃

設計理念

此案屋主希望打造現代簡約感的空間,並有大量的收納需求,這棟四層樓的透天別墅,杰一團隊以簡約時尚的現代風格為基調,融入舒適細緻的機能與細節,設計奢華大器的精品更衣室,打造出一個充滿質感與機能兼具的透天室內設計空間。

玄關設計

一樓規劃為玄關、車庫和獨立書房,溫潤的木質色調,上面陳列植栽等裝飾物品,呈現出一幅別緻的居家端景,營造出放鬆的返家氛圍。

客廳設計

客廳空間採用大量頂級石材,堆砌出豪宅奢華的氣勢感。客廳以大面積的收納高櫃,整合收納、影視娛樂和展示功能,並延伸至餐廳區,有效放大空間感。地磚的紋路營造出氣宇非凡的奢華氛圍,電視牆下方則以鍍鈦金屬格柵點綴,為簡約的空間增添細膩質感。
考量屋主有豐富的收藏展示品,設計團隊巧妙利用空間,在沙發後方設置深色系的收納高櫃,搭配橫向和直向的展示開口,將屋主的收藏品融入空間設計中,成為獨特的居家藝廊。櫃體底部特別選用麂皮繃布材質,搭配溫暖的燈光,如同高級珠寶展示櫃般,為客廳增添優雅的生活情趣。

餐廳設計

開放式的客餐空間,透過流暢的動線串起場域間的互動,時尚的純白淺色系餐桌,搭配造型燈具,大幅增強視覺效果,使整體空間更明亮開闊。

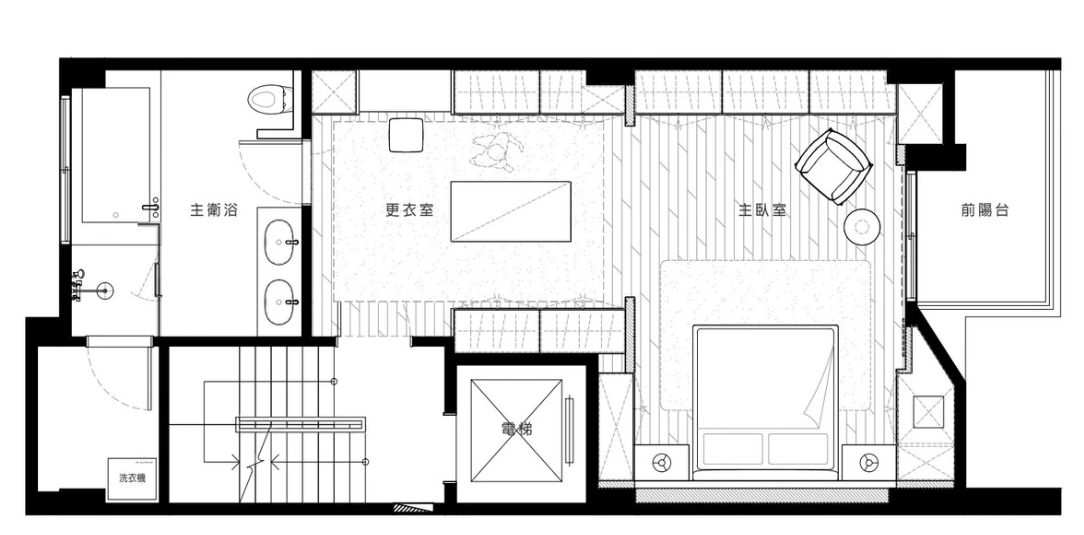
更衣室設計

精品級的更衣室和梳妝空間,採用回字型的中島櫃動線設計,為整體空間增添了流暢的動線,讓使用者在拿取物品時移動自如。皮革檯面提升了整體的質感,精緻展示出飾品與配件,為整個空間增添了不少亮點。
兩側的玻璃衣櫃,透過衣櫃內部的燈光映照,形成了自然的漸層光源,隱約透露出自然木皮的紋理,將衣服轉化成為空間中的焦點,營造出精品時尚專櫃般的奢華氛圍。
Image 2 Image 3
 

主臥室設計

寬敞的主臥室,具有舒適優雅的居家情調,媲美星級飯店的睡眠區。超耐磨木地板營造自然柔和的感受,造價昂貴的實木地板,是豪宅裝潢中的熱門選擇。

格局規劃

一樓配置平面圖
二樓配置平面圖
三樓配置平面圖
四樓配置平面圖